Nối tiếp sự thành công của các kiến trúc sư PSV trong mảng thiết kế thi công nhà phố. Hôm nay, PSV vô cùng hân hạnh khi được giới thiệu tới quý khách hàng và các bạn một công trình nhà phố 4 tầng 1 tum hiện đại vô cùng đẹp mắt do chị Nhung làm chủ đầu tư.

Dự án thiết kế thi công nhà phố 4 tầng 1 tum hiện đại
Nhà phố 4 tầng 1 tum hiện đại tại Nguyễn Sơn, Long Biên, Hà Nội là một ngôi nhà với kiến trúc, phong cách hiện đại. Đây là ngôi nhà có sự kết hợp giữa các yếu tố thẩm mỹ, phong thủy và tính khoa học trong việc bố trí công năng.
Sau một thời gian tìm hiểu về các mẫu nhà phố đẹp, chị Nhung quyết định lựa chọn công ty CP Kỹ thuật và xây dựng PSV làm thực thi xây dựng và thiết kế thi công nội thất trọn gói. Thời gian đầu chị băn khoăn, muốn cân nhắc giữa việc xây 4 tầng hay chỉ xây nhà phố 3 tầng. Tuy nhiên, được các kiến trúc sư tư vấn, để tốt cho phong thủy, gia đình chị nên xây mẫu nhà phố 4 tầng 1 tum. Chi phí tăng thêm không đáng kể lại tốt cho phong thủy.
Phương án được các kiến trúc sư đưa ra như sau:
- Loại hình: Nhà phố
- Phong cách: Hiện đại
- Số tầng: 4 tầng 1 tum
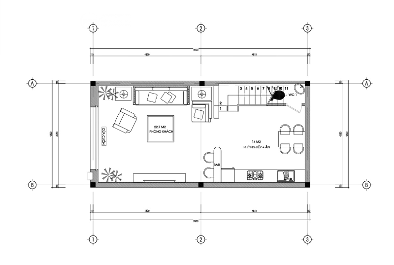
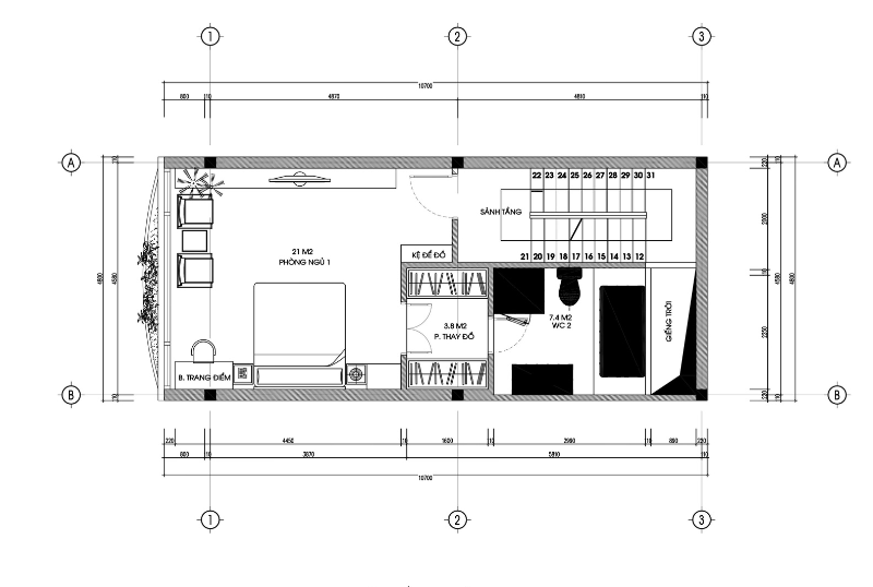
- Công năng: Công năng sử dụng cao, mỗi tầng là một căn hộ khép kín như khách sạn 3


Triển khai thi công nhà phố 4 tầng 1 tum hiện đại tại Nguyễn Sơn, Long Biên, Hà Nội

Các tầng đều sử dụng cửa kính để lấy sáng và lưu thông gió vào bên trong. Để đảm bảo yếu tố an toàn, tầng 1 lắp đặt thêm cửa cuốn bên ngoài.

Mặt tiền tầng ba và tầng bốn với tạo hình mảng tường chữ E, ốp đá màu nâu hiện đại, xen kẽ là các vách kính trong suốt. Các phòng bên trong dễ dàng quan sát view bên ngoài, tận dụng ánh sáng tự nhiên ở đây để làm không gian học tập, làm việc.

Tầng tum bố trí lam che trang trí tinh tế, tạo điều kiện để cung cấp ánh sáng cho việc trồng rau của gia đình.
THÔNG TIN VỀ DỰ ÁN
- Chủ đầu tư: Mrs.Nhung
- Loại hình: Thiết kế, thi công xây dựng, nội thất
- Địa chỉ: Nguyễn Sơn, Long Biên, Hà Nội
- Số tầng: 4 tầng 1 tum
- Diện tích: 50m2/ tầng
- Phong cách: Hiện đại
- Thời gian thực hiện: Tháng 9/2019 – tháng 1/2019
Với nhiều kinh nghiệm trong lĩnh vực thiết kế thi công nhà phố với kiến thức chuyên môn và gu thẩm mỹ nghệ thuật cao, PSV cam kết sẽ sáng tạo hết mình mang lại không gian sống lý tưởng nhất cho bạn và gia đình.
Hãy gọi ngay cho chúng tôi theo số hotline: 097.301.68.68 để tìm được một không gian sống lý tưởng, tiện nghi đầy phong cách sang trọng, thời thượng !





















