Thiết kế nhà phố 2 tầng hiện đại, cuốn hút tại Đông Triều, Quảng Ninh

191
PSV thiết kế nhà phố 2 tầng hiện đại tại Quảng Ninh
PSV thiết kế nhà phố 2 tầng hiện đại tại Quảng Ninh

Thiết kế nhà phố 2 tầng đang là xu hướng được nhiều khách hàng quan tâm nhất, với kiến trúc hiện đại, chi phí đầu tư không quá cao và quan trọng là mang đến không gian sống tiện nghi. Điển hình là dự án thiết kế nhà phố 2 tầng hiện đại tại Đông Triều, Quảng Ninh do PSV thực hiện đã nhận được đông đảo lời khen ngợi về vẻ đẹp cuốn hút và sự tiện nghi.

PSV thiết kế nhà phố 2 tầng hiện đại tại Quảng Ninh

Mẫu nhà thiết kế gia chủ mong muốn có mặt tiền thông thoáng, xử lý đơn giản về hình khối, các mảng khối cũng như bố cục xử lý đơn giản. Gia đình chú trọng đến không gian sống nên mong muốn mặt tiền và khối ban công, hệ thống cửa sổ và cửa chính sẽ được xử lý chuẩn, đảm bảo việc đón sáng, đón thoáng.

Theo như ý tưởng tên, PSV đã đưa ra phương án mặt bằng, đây là một trong những phương án chiếm nhiều thời gian trao đổi cho buổi làm việc của hai bên. Từ nhu cầu sử dụng thực tế, điều kiện đầu tư, kiến trúc sư PSV sẽ lấy đó làm căn cứ để triển khai ý tưởng thiết kế.

Dưới đây là 2 phương án mà PSV đã thiết kế nhà phố 2 tầng phong cách hiện đại tại Đông Triều, Quảng Ninh:

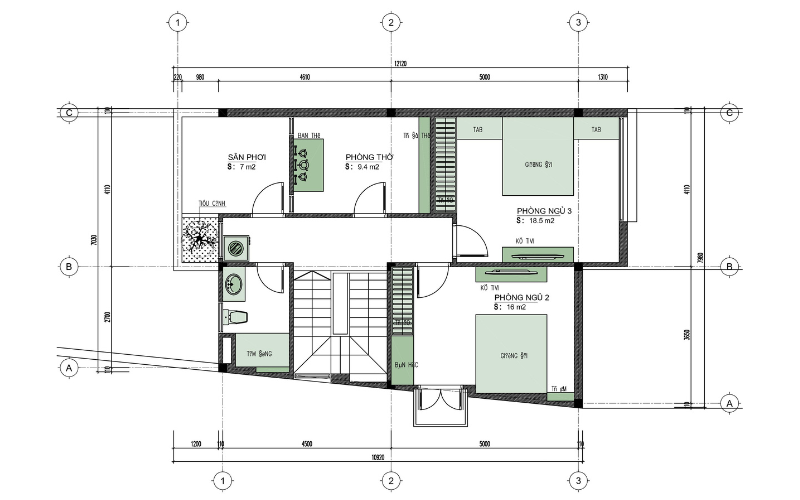
– Phương án thiết kế nhà phố 2 tầng số 1:

Sơ đồ mặt bằng theo phương án 1
Sơ đồ mặt bằng theo phương án 1
Bản thiết kế 3D nhà phố 2 tầng phong cách hiện đại
Bản thiết kế 3D nhà phố 2 tầng phong cách hiện đại

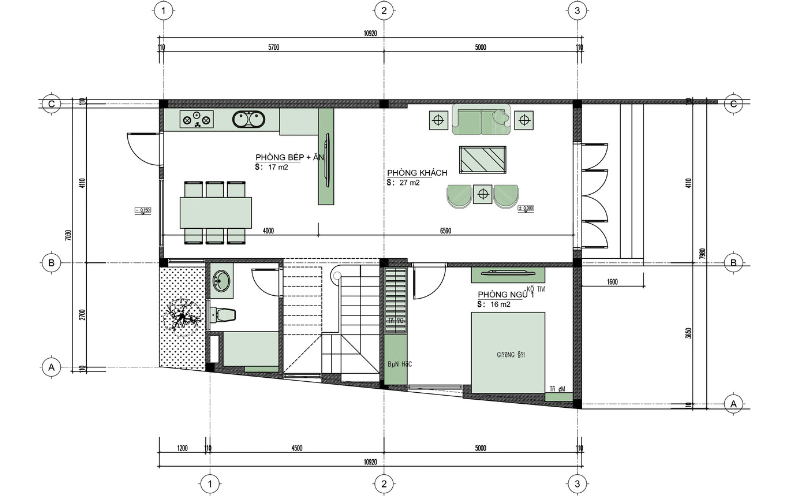
– Phương án thiết kế nhà phố 2 tầng số 2:

Sơ đồ mặt bằng nhà phố 2 tầng phương án 2
Sơ đồ mặt bằng nhà phố 2 tầng phương án 2
Bản thiết kế 3D nhà phố 2 tầng phong cách hiện đại
Bản thiết kế 3D 

THÔNG TIN VỀ DỰ ÁN

  • Chủ đầu tư: Mr.Dũng
  • Loại hình: Nhà phố hiện đại
  • Địa chỉ: Đông Triều, Quảng Ninh
  • Số tầng: 2 tầng
  • Diện tích: 85m2/ tầng
  • Thời gian thực hiện: tháng 5 – 6/2020
 

PSV – Đơn vị chuyên thi công, thiết kế nhà phố uy tín, chuyên nghiệp tại Hà Nội và cách tỉnh lân cận. Thời gian qua được sự tín nhiệm cũng như tin tưởng của nhiều gia chủ, chúng tôi đã và đang thi công rất nhiều dự án nhà phố, biệt thự, chung cư cao cấp, với mong muốn mang đến cuộc sống tiện nghi cùng những căn nhà đáng mơ ước đến mọi nhà.

Quý khách hàng có nhu cầu thiết kế nhà phố 2 tầng, thi công xây dựng nhà ở, thiết kế nội thất,…vui lòng liên hệ với đội ngũ kiến trúc sư của chúng tôi để được tư vấn tốt nhất. Mọi chi tiết xin liên hệ:

CÔNG TY CỔ PHẦN KỸ THUẬT VÀ XÂY DỰNG PSV

Địa chỉ: Số 179 Thạch Bàn, Long Biên, Hà Nội

Hotline: 097.301.68.68

Email: Info@psv.vn

Fanpage: fb.com/psv.vietnam